Duplex
€ 310.000

Wiekstraat 148 B12, 3600 Genk
    • delen

Omschrijving Ref.: 7652316

Nieuwbouw duplex met terras (zonder btw!) instapklaar


Ruim duplexappartement met terras (aankoop met 2% registratierechten, geen 21% btw)

Dit ruime duplexappartement maakt deel uit van een kleinschalige nieuwbouwresidentie met slechts drie wooneenheden en wordt verkocht onder registratierechten van 2% in plaats van 21% btw, wat een belangrijk financieel voordeel oplevert.

Het appartement is gelegen in Boxberg, een rustige en residentiële woonomgeving vlak achter de Hasseltweg.
Het domein Bokrijk bevindt zich op wandelafstand en biedt uitgebreide mogelijkheden voor ontspanning in het groen.
Winkels, scholen, openbaar vervoer en de E314 zijn vlot bereikbaar.

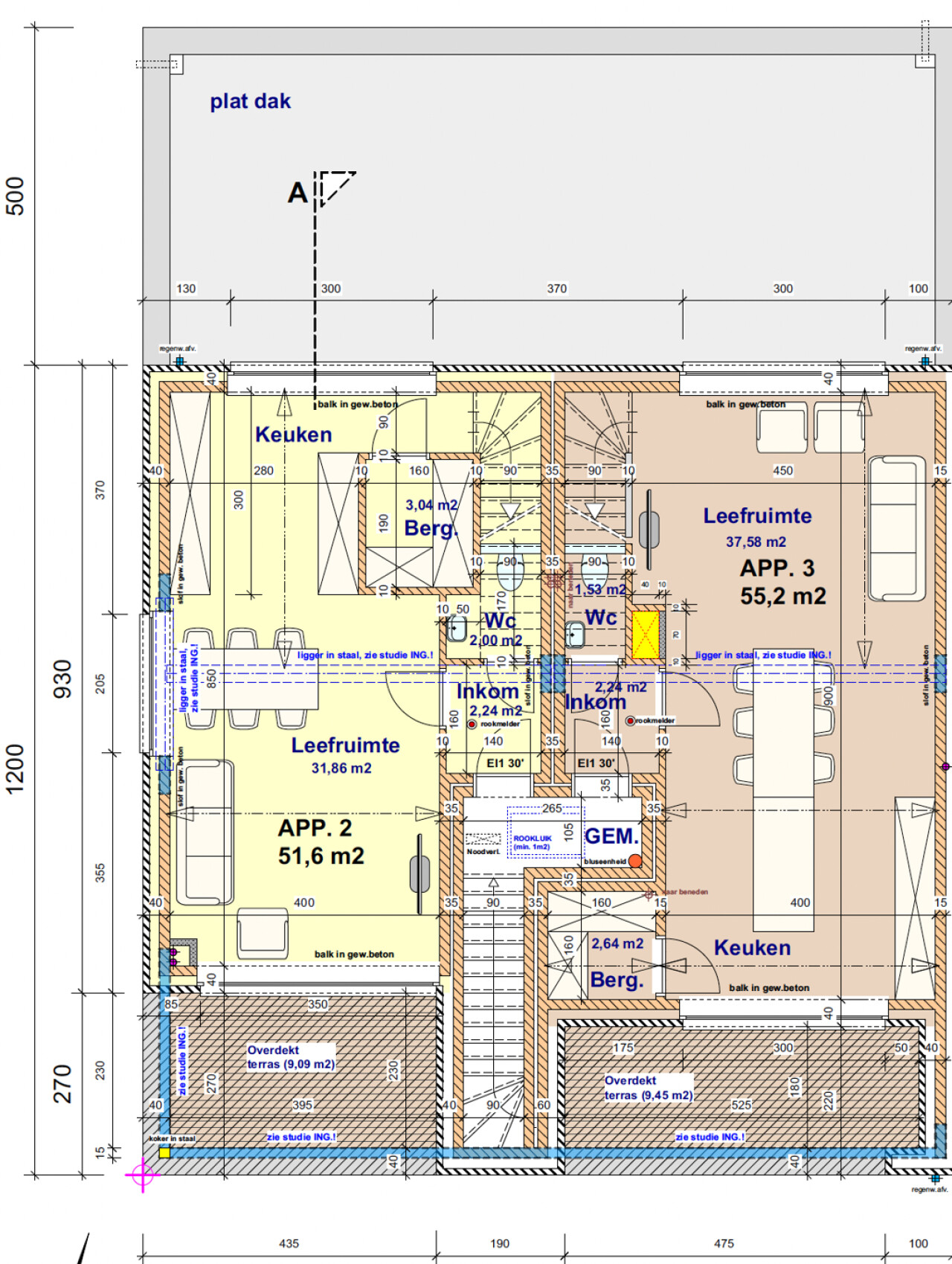
Met een bewoonbare oppervlakte van ca. 110 m² biedt dit duplexappartement een doordachte indeling over twee verdiepingen, wat zorgt voor een echt huisgevoel.
De kleinschaligheid van de residentie, met slechts drie appartementen, draagt bij aan een huiselijke sfeer en zorgt voor de nodige rust en privacy.

De leefruimte is open en lichtrijk, met een vlotte aansluiting tussen zithoek, eetplaats en volledig uitgeruste keuken.

Op de bovenverdieping bevindt zich het nachtgedeelte met twee volwaardige slaapkamers, wat zorgt voor een duidelijke scheiding tussen dag- en nachtruimte en extra privacy.
Verder beschikt het appartement over een moderne badkamer met inloopdouche en hoogwaardige sanitaire afwerking, een afzonderlijk toilet en een praktische berging.

Aansluitend aan de leefruimte bevindt zich een volledig inpandig terras van ca. 9 m², ideaal voor comfortabel buitengebruik in alle seizoenen.
Aan de achterzijde van het gebouw is een autostaanplaats inbegrepen.

Het appartement wordt volledig afgewerkt aangeboden en is instapklaar. De laatste afwerkingen worden momenteel afgerond, waardoor u hier op korte termijn zonder zorgen kan intrekken.

Het appartement is hoogwaardig afgewerkt en energiezuinig (EPC-label A).
Verwarming gebeurt via een warmtepomp met vloerverwarming, aangevuld met een ventilatiesysteem D, wat zorgt voor hedendaags en efficiënt wooncomfort.
Aluminium ramen dragen bij aan de duurzame en kwalitatieve afwerking.

Het definitieve EPC-certificaat wordt afgeleverd na uitvoering van de blowerdoortest.

Een belangrijk financieel voordeel is dat deze aankoop onder registratierechten gebeurt en niet onder het btw-stelsel.
Op een vraagprijs van 310.000 EUR betekent dit een aanzienlijke besparing ten opzichte van een klassieke nieuwbouw waarop 21% btw verschuldigd is.

Dankzij de kleinschaligheid van het project blijven de gemeenschappelijke kosten bovendien beperkt.

Contacteer ons voor meer informatie of een bezichtiging via info@bcimmo.be of op het nummer 0476 85 86 00.


Uw contact

Vragen over deze eigendom ref: 7652316
contact

Details van het pand

Financieel

Prijs
€ 310.000,00
Beschikbaarheid
In onderling overleg

Ligging

Buurt
Residentiële wijk

Gebouw

Bewoonbare oppervlakte
110,00 m²
Aantal gevels
2
Bouwjaar
2025
Staat
Nieuw
Verdiep
1
Aantal verdiepingen
2

Terrein

Grondoppervlakte
1.562,00 m²

Indeling

Woonkamer
31,86 m²
Keuken
Ja, volledig geïnstalleerd
Slaapkamer 1
15,92 m²
Slaapkamer 2
12,60 m²
Badkamer 1
6,38 m²
Toiletten
2
Terras
9,10 m²

Comfort

Gemeubeld
Nee
Lift
Nee

Energie

EPC
22 kWh/m²/jaar
EPC unieke code
71016-G-OMV_2023065685/EP15119/SV/A001/D01/SD003
Dubbele beglazing
Ja, thermische en akoestische onderbreking
Ramen
Aluminium of pvc
Elektriciteitskeuring
Ja, conform
Type verwarming
Warmtepomp
Verwarming
Individueel

Stedenbouw

Bestemming
Woongebied
Bouwvergunning
Ja
Verkavelingsvergunning
Niet meegedeeld
Voorkooprecht
Niet meegedeeld
Dagvaarding
Geen rechterlijke herstelmaatregel of bestuurlijke maatregel opgelegd
Vonnissen
Nee

Meer info over deze eigendom

Bedankt voor je bericht, we contacteren je zo spoedig mogelijk.
Er was een probleem bij het versturen van het formulier, gelieve opnieuw te proberen.
(*) Gelieve de verplichte velden in te vullen.