Duplex
€ 310.000

Wiekstraat 148 B12, 3600 Genk
    • delen
Dit pand maakt deel uit van Wiekstraat 148

Omschrijving Ref.: 7652430

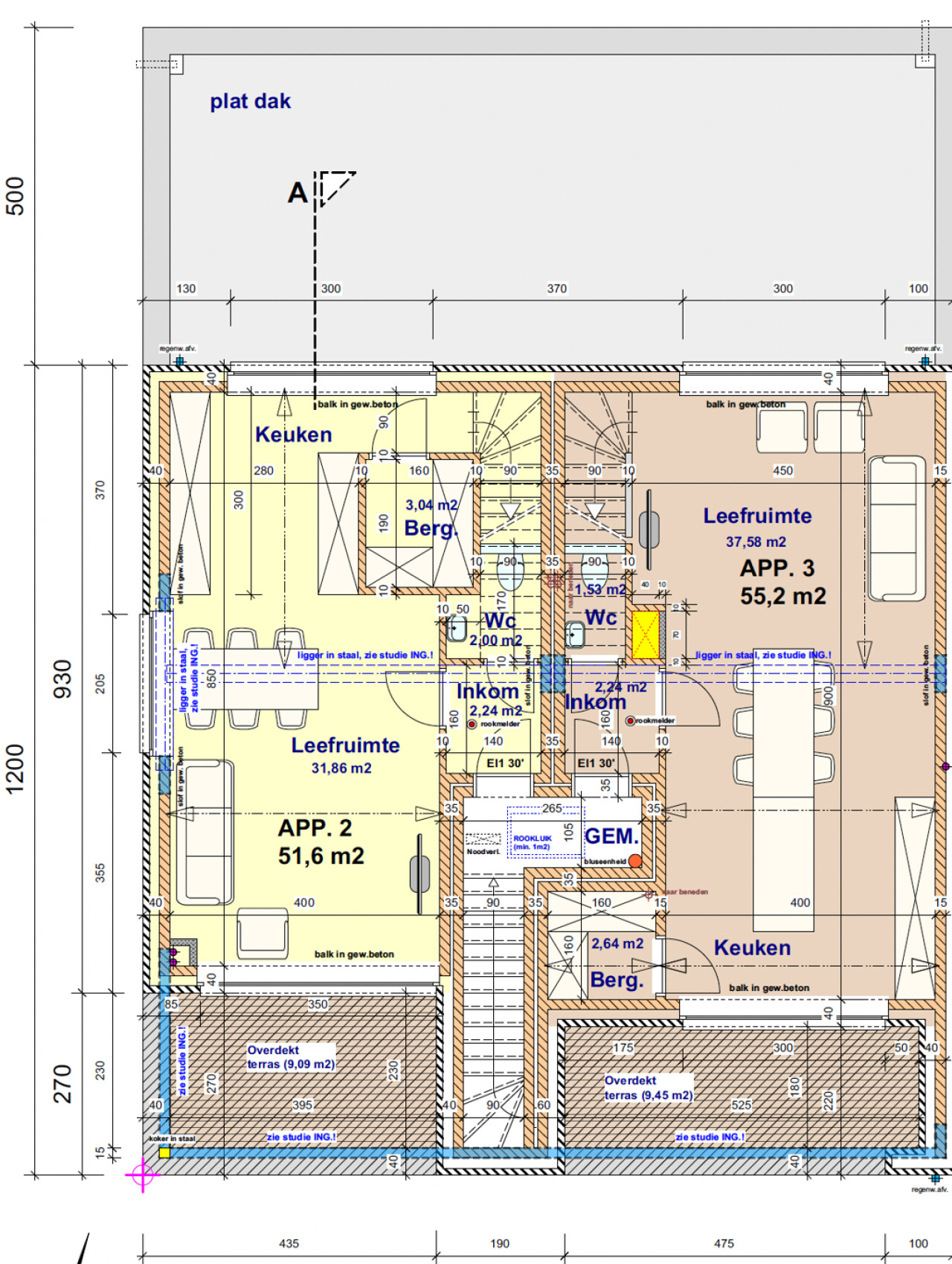
Nieuwbouw duplex met terras (zonder btw!) instapklaar


Kleinschalige nieuwbouwresidentie met 3 appartementen (zonder btw!)

In een rustige en residentiële woonomgeving in Boxberg, vlak achter de Hasseltweg en op wandelafstand van het domein Bokrijk, bevindt zich deze kleinschalige nieuwbouwresidentie bestaande uit slechts drie appartementen.

Dankzij de beperkte omvang geniet u hier van een aangename woonkwaliteit met extra rust, privacy en een meer huiselijk karakter, wat zelden voorkomt in klassieke appartementsgebouwen. Bovendien blijven de gemeenschappelijke kosten beperkt.

Alle appartementen worden volledig afgewerkt aangeboden en zijn instapklaar. De laatste afwerkingen worden momenteel afgerond, waardoor u op korte termijn kan intrekken zonder lange wachttijden.

Er werd sterk ingezet op energiezuinigheid en wooncomfort, met onder meer een warmtepomp, vloerverwarming en een ventilatiesysteem D (EPC-label A).

Een belangrijk financieel voordeel is dat de aankoop gebeurt onder registratierechten (2%) en niet onder het btw-stelsel, wat een aanzienlijke besparing betekent.

Interesse in dit project?
Contacteer BC Immo voor meer informatie of een bezichtiging via info@bcimmo.be
of 0476 85 86 00.


Uw contact

Vragen over deze eigendom ref: 7652430
contact

Details van het pand

Financieel

Prijs
€ 310.000,00
Beschikbaarheid
In onderling overleg

Ligging

Buurt
Residentiële wijk

Gebouw

Bewoonbare oppervlakte
110,00 m²
Aantal gevels
2
Staat
Nieuw
Verdiep
1
Aantal verdiepingen
2

Terrein

Grondoppervlakte
1.562,00 m²

Indeling

Woonkamer
31,86 m²
Keuken
Volledig geïnstalleerd
Slaapkamer 1
15,92 m²
Slaapkamer 2
12,60 m²
Badkamer 1
6,38 m²
Toiletten
2
Terras
9,10 m²

Comfort

Gemeubeld
Nee

Energie

EPC
24 kWh/m²/jaar
EPC unieke code
71016-G-OMV_2023065685/EP15119/SV/A001/D01/SD002
Dubbele beglazing
Thermische en akoestische onderbreking
Elektriciteitskeuring
Ja, conform

Stedenbouw

Bestemming
Niet meegedeeld
Bouwvergunning
Ja
Verkavelingsvergunning
Niet meegedeeld
Voorkooprecht
Niet meegedeeld
Dagvaarding
Geen rechterlijke herstelmaatregel of bestuurlijke maatregel opgelegd
Vonnissen
Nee

Meer info over deze eigendom

Bedankt voor je bericht, we contacteren je zo spoedig mogelijk.
Er was een probleem bij het versturen van het formulier, gelieve opnieuw te proberen.
(*) Gelieve de verplichte velden in te vullen.